« Chaque projet est unique, c’est pourquoi nous vous proposons différents types de prestations allant de la projection à la réalisation complète afin de répondre au mieux à toutes vos attentes. »

I / SE PROJETER

L’aide à la projection a pour but de révéler le potentiel d’un bien et de s’y projeter. 
Elle s’adresse principalement aux professionnels de la vente immobilière mais peut très bien servir à un particulier souhaitant mettre en avant son bien.

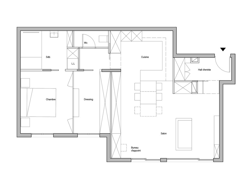
Plan de relevé d’état des lieux

3D du concept

Elle consiste en une réflexion autour d’un ou plusieurs espaces d’un bien destiné à la vente, qui nécessite une révélation de son potentiel, mais qui présente un agencement problématique ou complexe. C’est un atout complémentaire susceptible de créer le coup de cœur.

La prestation comprend un rendez-vous sur place pour discuter du ou des espaces charnière(s). S’ensuit un relevé plan et photos de la zone d’étude.
Suite au relevé, le projet est modélisé en 3D afin de mettre en avant la zone d’intervention ainsi que de réaliser les rendus 3D.

II / ESQUISSE

L’esquisse est la première étape de tout projet. Destinée aussi bien aux professionnels qu’aux particuliers, elle comprend tous les éléments nécessaires à la visualisation de votre projet. L’esquisse permet de viabiliser une idée, d’esquisser un premier budget et de concrétiser une envie. 

plan architecture d'intérieur Annecy

Plan d’état des lieux

Version possible du projet

La première étape de tout projet est de prendre rendez-vous afin de définir le cahier des charges.

A la suite du rendez-vous, un relevé photos et un relevé de plan précis est effectué (si le travail concerne de l’existant).

S’en suivent des propositions de différentes variantes accompagnées de 3D de concept afin de visualiser plus précisément le projet. Une fois validé, les plans finaux et les rendus 3D sont réalisés.

Axonométrie 3D du projet

plan architecture d'intérieur Annecy

Plan définitif

Rendus 3D du projet et de ses variantes

III / PROJET

La phase projet est la plus complète, elle va de l’esquisse à la réalisation de votre projet neuf ou de rénovation. Que vous soyez professionnel ou particulier c’est la concrétisation de votre projet.

Une fois la phase esquisse terminée, nous rentrerons ensemble dans les moindres détails de votre projet. Plans techniques, plans de mobiliers sur-mesure, choix des matériaux et calepinage… sont autant d’éléments qui permettent de concrétiser votre projet de A à Z. 

Plan électrique

Choix des couleurs et matériaux

Croquis de détails de mobiliers pour discussions avec les artisans

Plans de mobiliers sur mesure

IV / design graphique

L’agence propose aussi un accompagnement de design global pour votre projet professionnel, afin de vous apporter une maitrise et une personnalisation dans les moindres détails.

Visuel pour affiche et microfibre

Création du packaging